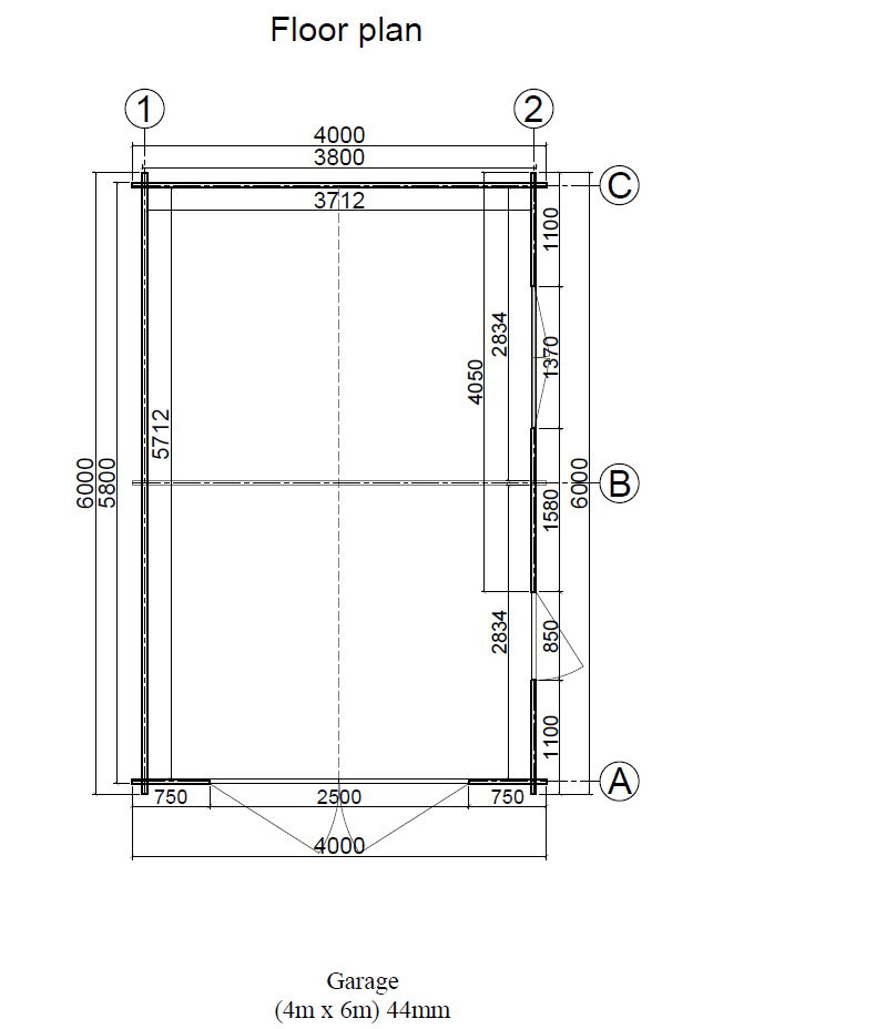
You are currently viewing Garage 4×6

Garage 4×6

Abrigos e garagens em pinho nórdico certificado: durabilidade, segurança e sustentabilidade

Ter um abrigo ou garagem em madeira de qualidade é muito mais do que proteger o carro da chuva e do sol. É investir numa estrutura resistente, sustentável e com um design que valoriza a sua propriedade. Os abrigos e garagens em pinho nórdico certificado juntam o melhor da engenharia moderna em madeira com a beleza natural deste material.


Porque escolher pinho nórdico certificado?

O pinho nórdico cresce em climas frios, o que faz com que tenha fibras mais densas e regulares, garantindo maior estabilidade, resistência mecânica e durabilidade quando comparado com madeiras de crescimento rápido.

Quando a madeira é certificada, significa que a floresta de origem é gerida de forma responsável, desde o corte à transformação, seguindo critérios ambientais, sociais e económicos rigorosos.

Duas das certificações mais reconhecidas a nível internacional são:

  • FSC® (Forest Stewardship Council) – garante que a madeira provém de florestas geridas de forma responsável, com controlo de toda a cadeia de custódia, desde a floresta até ao produto final.

  • PEFC™ (Programme for the Endorsement of Forest Certification) – é o maior sistema de certificação florestal do mundo, assegurando a gestão florestal sustentável e a rastreabilidade dos produtos de base florestal.

Escolher abrigos e garagens em pinho nórdico com certificação FSC/PEFC é, por isso, uma forma concreta de contribuir para a proteção das florestas e, ao mesmo tempo, garantir um produto com origem controlada e qualidade consistente.


Vantagens de abrigos e garagens em madeira

1. Resistência e segurança estrutural

As estruturas em madeira para edifícios na Europa são calculadas de acordo com o Eurocódigo 5 (EN 1995-1-1), o conjunto de normas europeias para o dimensionamento de estruturas de madeira.
Isto permite projetar garagens e abrigos com elevada resistência ao vento, à carga de neve e ao uso diário, garantindo estabilidade e segurança a longo prazo.

2. Conforto e desempenho térmico

A madeira é, por natureza, um excelente isolante térmico. Um abrigo ou garagem em pinho nórdico:

  • Reduz choques térmicos no interior

  • Protege melhor o veículo de temperaturas extremas

  • Ajuda a evitar condensações excessivas

Com a combinação de isolamento adequado e ventilação correta, é possível transformar a garagem não apenas num espaço de estacionamento, mas também numa pequena oficina, zona de arrumos ou área de hobbies confortável durante todo o ano.

3. Montagem rápida e obra limpa

Abrigos e garagens em pinho nórdico certificado são geralmente fornecidos em sistema pré-fabricado ou semi-pré-fabricado, o que permite:

  • Prazos de montagem reduzidos em comparação com soluções tradicionais em alvenaria

  • Menos entulho de obra

  • Maior controlo de qualidade, porque a estrutura é produzida em ambiente industrial

4. Valorização estética do espaço exterior

A madeira tem um impacto visual muito mais integrado na paisagem do que o betão ou o metal. Um abrigo ou garagem em pinho nórdico:

  • Harmoniza com jardins, quintas e ambientes rurais

  • Adapta-se bem a moradias contemporâneas ou tradicionais

  • Pode ser combinado com decks, pérgulas e arrumos, criando um conjunto funcional e bonito


Certificações, normas e enquadramento legal em Portugal

Em Portugal, qualquer construção, incluindo abrigos e garagens em madeira, deve respeitar o Regulamento Geral das Edificações Urbanas (RGEU), que define requisitos essenciais como segurança estrutural, salubridade e funcionalidade das construções.

Quando a estrutura é calculada de acordo com o Eurocódigo 5 e executada com madeira certificada, fica muito mais simples demonstrar que o abrigo ou garagem cumpre os critérios de resistência e estabilidade exigidos pela legislação em vigor.

Além disso, a utilização de madeira certificada FSC ou PEFC reforça o compromisso com a sustentabilidade, um tema cada vez mais valorizado em projetos de construção e reabilitação, e frequentemente mencionado em sistemas de certificação ambiental de edifícios, como o LEED.


Tipos de abrigos e garagens em pinho nórdico certificado

É possível adaptar o projeto às necessidades de cada cliente, por exemplo:

  • Abrigos abertos para viaturas

    • Abrigo simples para 1 carro

    • Abrigo duplo para 2 viaturas

    • Estruturas com pilares em madeira e cobertura em telha ou chapa de aço galvanizado

  • Garagens fechadas em madeira

    • Garagem individual com porta seccionada ou portão basculante

    • Garagens duplas com divisória interior

    • Integração de janelas para luz natural e portas pedonais independentes

  • Garagens com anexos e arrumos

    • Zona de estacionamento + arrumo para ferramentas de jardim

    • Pequena oficina, lavandaria ou espaço técnico (bombas, equipamentos, etc.)

    • Possibilidade de adicionar pérgulas, alpendres ou decks laterais


Personalização e acabamentos

Os abrigos e garagens em pinho nórdico certificado permitem um elevado grau de personalização:

  • Espessuras de madeira variadas, de acordo com o uso pretendido

  • Diferentes tipos de cobertura (telha cerâmica, telha metálica)

  • Tratamentos de proteção contra fungos, insetos e intempérie

  • Várias tonalidades de lasur ou tinta para adaptar a cor da madeira ao estilo da casa

  • Opções de isolamento adicional na cobertura e nas paredes, quando se pretende maior conforto térmico


Um investimento inteligente e sustentável

Optar por abrigos e garagens em pinho nórdico certificado é unir:

  • Segurança estrutural, apoiada em normas europeias para estruturas de madeira

  • Sustentabilidade, com certificação florestal reconhecida internacionalmente

  • Conforto e funcionalidade, graças ao bom desempenho da madeira

  • Estética e integração na paisagem, valorizando o imóvel e o espaço exterior

Se procura uma solução duradoura, com baixa pegada ambiental e que acrescente valor à sua propriedade, um abrigo ou garagem em pinho nórdico certificado é, hoje, uma das opções mais completas e equilibradas disponíveis no mercado.